Melville


Sitting on a plot of only 90 m², this project models efficient use of space for inner-city living. Its unique location on a small shopping strip allowed the house to be built up to the footpath with no setback, an uncommon typology in Melbourne.

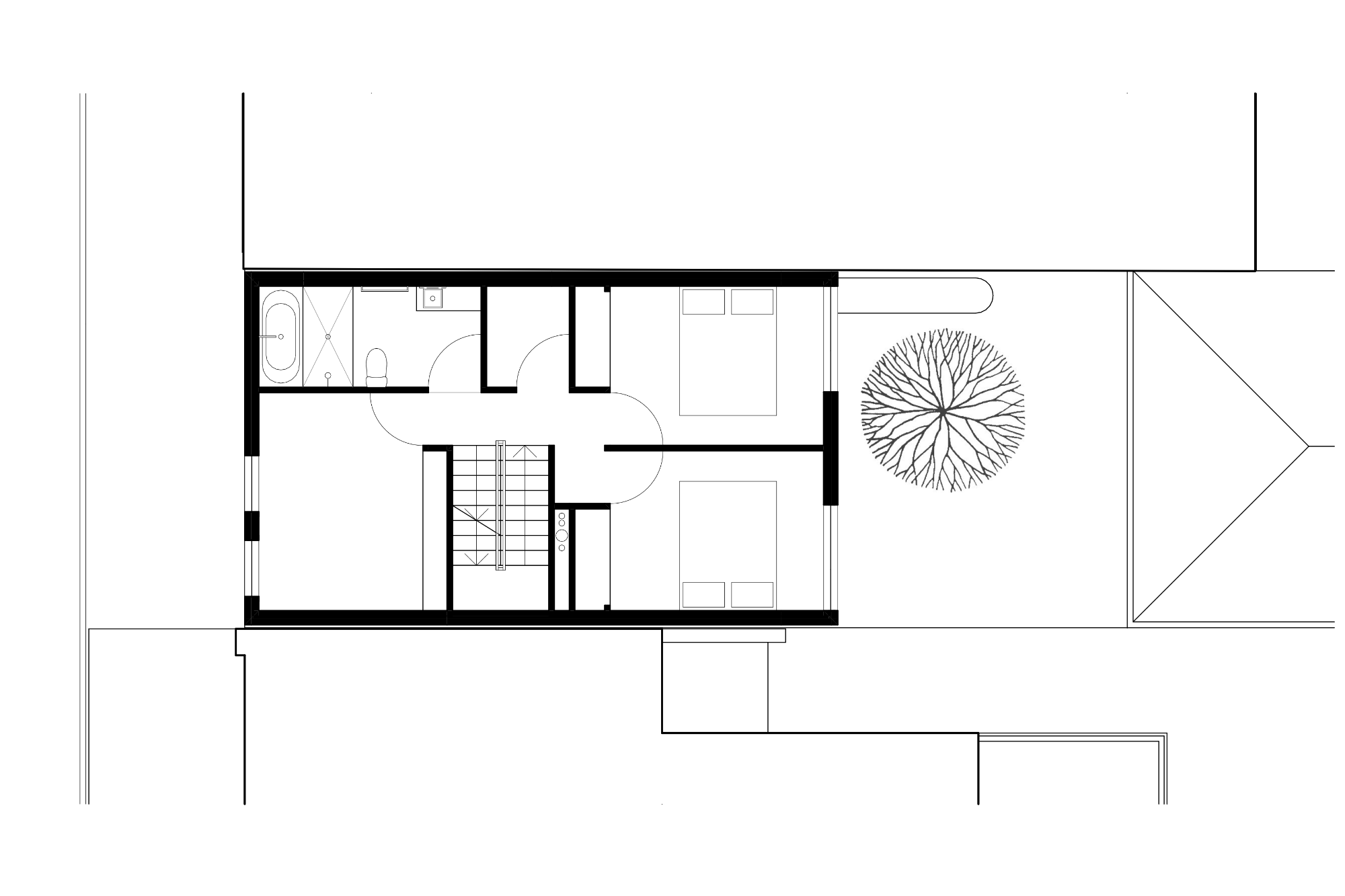
One of the design objectives for this house was to maximise outdoor space, a valuable amenity in the urban environment. The compact interior is offset by tall ceilings, and we prioritised variety over size of spaces to create a highly functional family home. The 112 m² of internal floor area includes three bedrooms plus a study, two living areas, two bathrooms, a powder room, a laundry, two store rooms, and even a garage (though not the kind that one might immediately imagine).

Housing in Melbourne has traditionally not accounted for bicycle use and storage. The occupants are heavy bike users, so we devised a ‘bike garage’ where they can wheel their bicycles on and off the footpath through a secondary entrance. The bike garage is linked to the internal entry vestibule for convenient access to the interior.

Comfort and air quality are maintained through a central reverse-cycle HVAC system and a heat recovery ventilator. Appliances are all electric, supplemented by a solar array. External doors and windows have thermally broken aluminium frames with extra-thick double glazing for acoustic attenuation.


Ground floor plan
Level 1 plan
Level 2 plan

Articles:
Dezeen, Jos Tan Celebrates City Living With compact Melbourne home
The Design Files, An ‘Awkward’ Inner-City Block Turned Architect’s Family Home

Builder: Owner
Structural engineer: R. Bliem and Associates
Building surveyor: Metro Building Surveying
Photography: Tom Ross
Art Direction: Jess Kneebone